Kadıköy Kiralık Ofis 60 m2 Hazır Ofis Business İstanbul, 3 Ayrı Ofis
3 ayrı bağımsız süit ofisimiz; Business İstanbul Plazada, Kadıköy / Göztepe lokasyonunda bulunmaktadır. Mükemmel lokasyonda, metronun hemen çıkışında, modern mobilyalar ile dekore edilmiş, ihtiyacınıza uygun metrekareli, Business İstanbul’un 18. katındadır. Kiralık ofisimizin tamamı gün ışığı alır, açılır camı bulunmaktadır. Oldukça ferah, 3 ayrı ofis ten oluşan 60 m² kullanım alanı olan ofisimiz kiralıktır. Kadıköy kiralık ofis.
GÖZTEPE BUSINESS İSTANBUL PLAZADA EMSALSİZ HAZIR OFİS
3 ODA YAN YANA / BİTİŞİK KONUMDA TOPLAM 60 m² NET KULLANIM ALANI
TÜM ODALAR CAM KENARI / AÇILIR CAMLI





Ofisimizin gerçek resimleri. Daha fazla görsel talepleriniz için aşağıdaki iletişim kur bölümüne talep oluşturabilirsiniz.
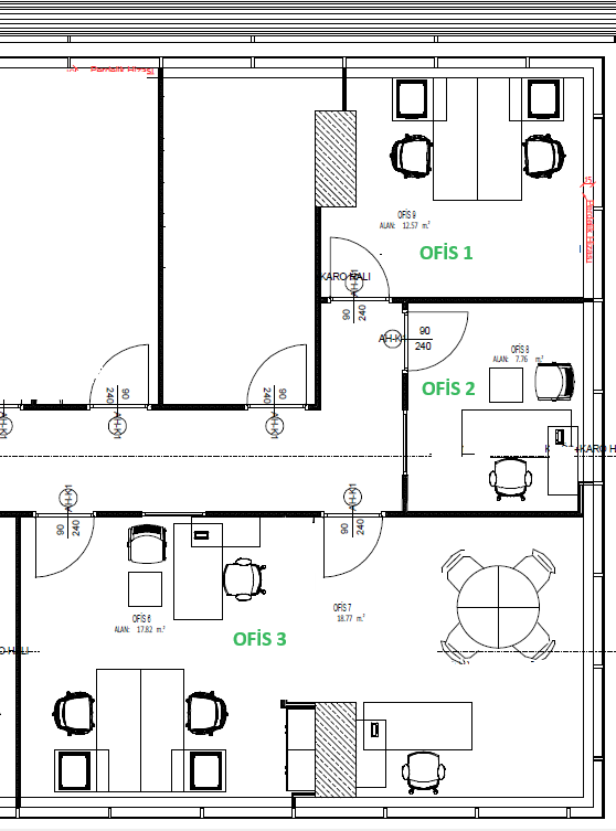
İLETİŞİM KUR3 Ayrı Ofis Planı, Süit Ofis yerleşim planı

| OFİS | Kullanım Şekli | Net Metrekare |
| OFİS 1 | MÜDÜR / PATRON | 13 m² |
| OFİS 2 | YÖNETİCİ | 8 m² |
| OFİS 3 | ÇALIŞAN / PERSONEL | 36 m² |
Süit Ofis, 60 m² Net
Birbirinden bağımsız 3 ayrı kiralık hazır ofis.
Her şey dahil kiralama, tek fatura.
- Eksiksiz, kaliteli ofis mobilyaları,
- Günlük temizlik,
- Telefon cevaplama, sekreterlik ve karşılama hizmetleri,
- Ücretsiz içecekler,
- Yüksek hızlı internet, ofis teknoloji ihtiyaçları,
- Kira ücretine dahil; elektrik, su, ısınma, klima vb. giderler,
- Tek kira bedeli
Sahibinden Kiralık Ofis
Ofislerimizin Özellikleri
- Kişi sayısına göre çalışma masası ve çalışma koltuğu,
- Dolap, keson, etajyer, askılık, telefon,
- Orta sehpa ve ziyaretçi koltuğu,
- Ses izolasyonlu ofisinizde modern ve konforlu mobilyalar,
- Ücretsiz telefon numarası tahsisi
- 7/24 ofis kullanımı, gün boyu ücretsiz ikramlar.

Kiralık Ofis Dahil Olan Hizmetler
✅ Aidat, elektrik, su, doğalgaz vb. ek faturalar ödemezsiniz,
✅ Ofis ihtiyacınız için mobilya, çalışma koltuğu, dolap, keson vb. ofis gereksinimleri,
✅ Günlük ve haftalık detaylı temizlik hizmeti,
✅ Ücretsiz su, çay ve kahve ikramları,
✅ Sekreterlik hizmeti,
✅ Telefon numarası tahsisi, telefon karşılama ve yönlendirme,
✅ Yüksek hızlı internet,
✅ 7/24 güvenlik ve resepsiyon,
✅ Ofisiniz içerisinde, kullanıma bağlı gerekli tadilat ve bakımlar,
Üstelik tüm bunlara ek olarak şirketiniz için ciddi avantaj sağlayacak olan KDV kesilen faturanız. Geleneksel ofis kiralamalarında ödenmesi gereken stopaj ücretleri Hazır Ofis Kiralama Hizmetimizde ödenmiyor. Aylık kesilen KDV’li faturanızın tamamını gider göstererek şirketinize avantaj sağlıyorsunuz.
Hazır Ofis Nedir?
Adından anlaşılacağı üzere bir ofiste olması gereken tüm mobilyaları ile hazırlanmış ofislere hazır ofis denir.
Hazır Ofis sisteminde, tek bir kira faturası ödenir. Geleneksel ofis kiralamalarındaki gibi internet, su ,telefon, bakım onarım vb. aklınıza gelecek tüm ofis maliyet ve masraflarının olmadığı sistemdir. Tek bir kira faturası ile tüm ihtiyaçlarınız karşılanır.
Tnext Office’ten kiralayacağınız ofisiniz ile;
✅ Kurulum masrafı ödemez, aylık masraflarınız düşer.
✅ Prestijli lokasyon ve plazada ofisiniz olur ve geleneksel kiralamalara göre çok uygun ücretlerle kiralama yaparsınız,
✅ Aidat, elektrik, su, internet, doğalgaz, bakım/ onarım masraflarını ödemez, ofis muhasebe işleriniz azalır,
✅ Ücretsiz telefon numarası tahsis edilir ve sekreterlik hizmeti ile gelen çağrılarınız firma isminizle karşılanır. Personel istihdamınız azalır,
✅ Ofisinizi ziyarete gelen misafirleriniz sekreterlik hizmeti ile karşılanır, personel istihdamınız azalır,
✅ Gün boyu ücretsiz sıcak içecek ikramından faydalanır, mutfak ihtiyaç ve giderleriniz için efor sarf etmezsiniz.
✅ Ofisinizin temizliği günlük olarak yapılır, personel istihdam etmenize gerek kalmaz.
Ve daha bir çok avantajla minimum maliyetlerle ofis sahibi olursunuz.
Lokasyon – Tnext Office Nerede?
İstanbul – E5 Göztepe köprüsünün hemen yanında bulunan Business İstanbul Plaza, İstanbul’un kalbinde prestijli bir ofis imkanı sunuyor.
Lokasyon avantajlarımız;
- Göztepe Metro 100 metre,
- Uzunçayır Metrobüs 900 metre,
- Avrasya Tüneli 1,8 kilometre,
- Marmaray’a Metro ile 3 durak,
- Bağdat Caddesi 2,2 kilometre.
Profesyonel hazır ofis hizmetlerimiz ile sizin ve ekibinizin konforunuza ve prestijinize dair her şeyi düşündük.


